Doppelhaushälfte in Bernau bei Berlin

barrierefrei
Dachboden
Garten/­-mitbenutzung
Gäste WC

Nicht warten, sondern starten in Bernau! Ihr neues Einfamilienhaus!

Anfragen bisher

Premium

Meine Chancen

Premium

Fairer Preis

Premium

458.000 €

Kaufpreis

123,83 m²

4 Zi.

16321 Bernau bei Berlin

Gewerblicher Anbieter

allkauf Haus GmbH
Carenaallee 8
15366 Hoppegarten

Details

Grundstücksfläche
310 m²
Zimmerzahl
4
Haustyp
Doppelhaushälfte
Etagenzahl
2
Anzahl Schlafzimmer
3
Anzahl Badezimmer
1
Objektzustand
Erstbezug
Baujahr
2026

Kosten

Kaufpreis
458.000 €
Käuferprovision
keine
Was kostet dein Umzug?

Objektbeschreibung

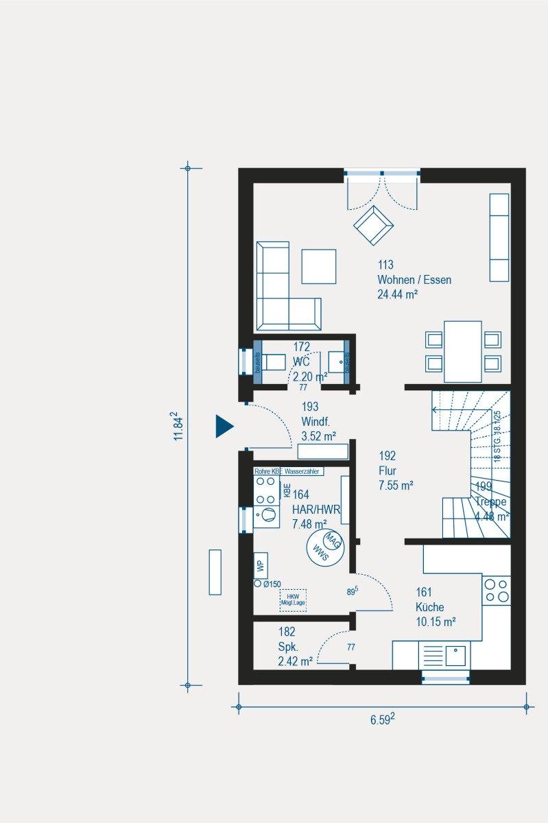
Diese durchdachte Raumaufteilung lässt keine Wünsche offen. So
bietet das Erdgeschoss mit mehr als 62 m² jede Menge
Möglichkeiten zur Entfaltung. Die geräumige Küche ist durch den
Flur vom Wohnbereich getrennt und punktet durch die integrierte
Speisekammer und den direkten Zugang zum Haustechnikraum.
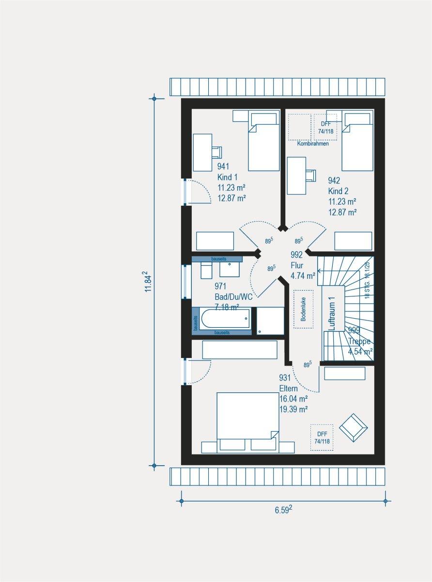
Das Obergeschoss ist mit 3 Schlafzimmern ausgestattet. Im
Elternschlafzimmer, mit fast 20 m², lässt sich außerdem noch eine
begehbare Ankleide platzieren.


Bausubstanz & Energieausweis

Objektzustand
Erstbezug
Heizungsart
Fußbodenheizung
Befeuerung
Wärmepumpe

Ausstattung

Sie erwerben das Haus schlüsselfertig auf Bodenplatte (Keller ist
möglich) und können Ihre Wünsche bei Grundriss und
Ausstattung mit einbringen. Die Übergabe ist für das 4. Quartal
2026 geplant.



  • Architektenleistung inkl.

  • KfW Effizienzhaus 55 im Grundpreis

  • geringer Mehrpreis für Effizienzhausstandard 40, mit der
    Möglichkeit für KfW-Fördermittel

  • auf Wunsch inkl. PV/ Stromspeicher/ Wallbox

  • Kontrollierte Be- und Entlüftungsanlage mit
    Wärmerückgewinnung

  • klimafreundliche Luftwasser-Wärmepumpe inkl.
    Fußbodenheizung

  • Echtholztreppe in verschiedenen Farben

  • Versicherungspaket während der Bauphase

  • 3-fach verglaste Fenster inkl. Alurollläden

  • Wohnraumhöhe von 2,75 m enthalten

  • und vieles mehr...


Lagebeschreibung

Die Reservierung ist AB SOFORT möglich. Das Grundstück
können Sie provisionsfrei erwerben. Es stehen verschiedene
Grundstücksgrößen zur Verfügung- bitte sprechen Sie uns an!
Bernau bei Berlin ist eine Stadt im Bundesland Brandenburg, die
unmittelbar nordöstlich an die Bundeshauptstadt Berlin grenzt.
Die Stadt liegt im Landkreis Barnim. Bernau ist Teil der
Metropolregion Berlin/Brandenburg und profitiert von der direkten
Nähe zur Hauptstadt. Die Entfernung zum nordöstlichen Stadtrand
Berlins beträgt nur etwa 6 km.


Die Umgebung ist geprägt von viel Grün, Wäldern und Seen und
gehört zur Regionalpark Barnimer Feldmark.
Die Lage ist verkehrstechnisch sehr gut erschlossen, was sie zu
einem beliebten Wohnort für Pendler macht:
Die Stadt ist an das Berliner S-Bahn-Netz (Linie S2) und den
Regionalverkehr angebunden.
Die Bundesautobahn A11 (Berlin-Stettin) sowie Bundesstraßen
verlaufen in der Nähe und gewährleisten eine schnelle Anbindung
an Berlin und das Umland.
Zusammenfassend lässt sich sagen, dass Bernau bei Berlin eine
Stadt im Speckgürtel Berlins ist, die die Vorteile einer ruhigen,
grünen Umgebung mit der direkten Anbindung an die Metropole
verbindet.
Bitte beachten Sie, Grundstücksdaten können wir ohne ein
persönliches Gespräch aus rechtlichen Gründen nicht weiterleiten.


Sonstige Angaben

Bauen mit allkauf Haus bedeutet:



  • individuelle und professionelle Beratung

  • Möglichkeit zur Individualisierung Ihres Hausgrundrisses

  • Bauen mit Profis - über 40 Jahre Markterfahrung

  • Festpreisgarantie 15 Monate

  • kurze Hausbauzeit

  • professionelle Betreuung bei der Finanzierung

  • Unterstützung bei der Inanspruchnahme möglicher Fördergelder
    Die Baunebenkosten, wie zum Beispiel Grunderwerbskosten,
    Notar, Hausanschlüsse, behördliche Gebühren oder
    Finanzierungskosten sind nicht im Gesamtpreis enthalten. Die
    Abbildungen zeigen zum Teil Sonderausstattungen. Für die
    Richtigkeit und Vollständigkeit der Angaben kann keine Gewähr
    bzw. Haftung übernommen werden. Ein Zwischenverkauf und
    Irrtümer sind vorbehalten.


I am also happy to speak englisch and i can do consulting sessions in englisch too.


Wohnung finden so einfach wie möglich - das ist unsere Mission!

Kostenlose Basic Features

0 € monatlich


  • Individuelles Such-Profil anlegen
  • Suchaufträge speichern
  • One-Klick Kontaktaufnahme

alles anzeigen

Jetzt kostenlos anmelden

Premium Features

19,99 € monatlich


  • Alle kostenlosen Features
  • Smart-Alarm per Whatsapp
  • Deine Chancen checken
  • Wohngegend analysieren

alles anzeigen

Jetzt Premium freischalten

Gewerblicher Anbieter

allkauf Haus GmbH
Carenaallee 8
15366 Hoppegarten

Wohnglück-ID:
Objekt-Nr.:
WGL-888070
4177-284-DH47-127737