Erdgeschosswohnung in Steinkirchen

Balkon/­Terrasse
Garten/­-mitbenutzung
Einbauküche
Garage/­Stellplatz

Modernisierte 3-Zimmer-Erdgeschosswohnung zur Miete in Steinkirchen Ihr neues Zuhause wartet!

Anfragen bisher

Premium

Meine Chancen

Premium

Fairer Preis

Premium

1.052,25 €

Kaltmiete

91,5 m²

3 Zi.

Erdg.

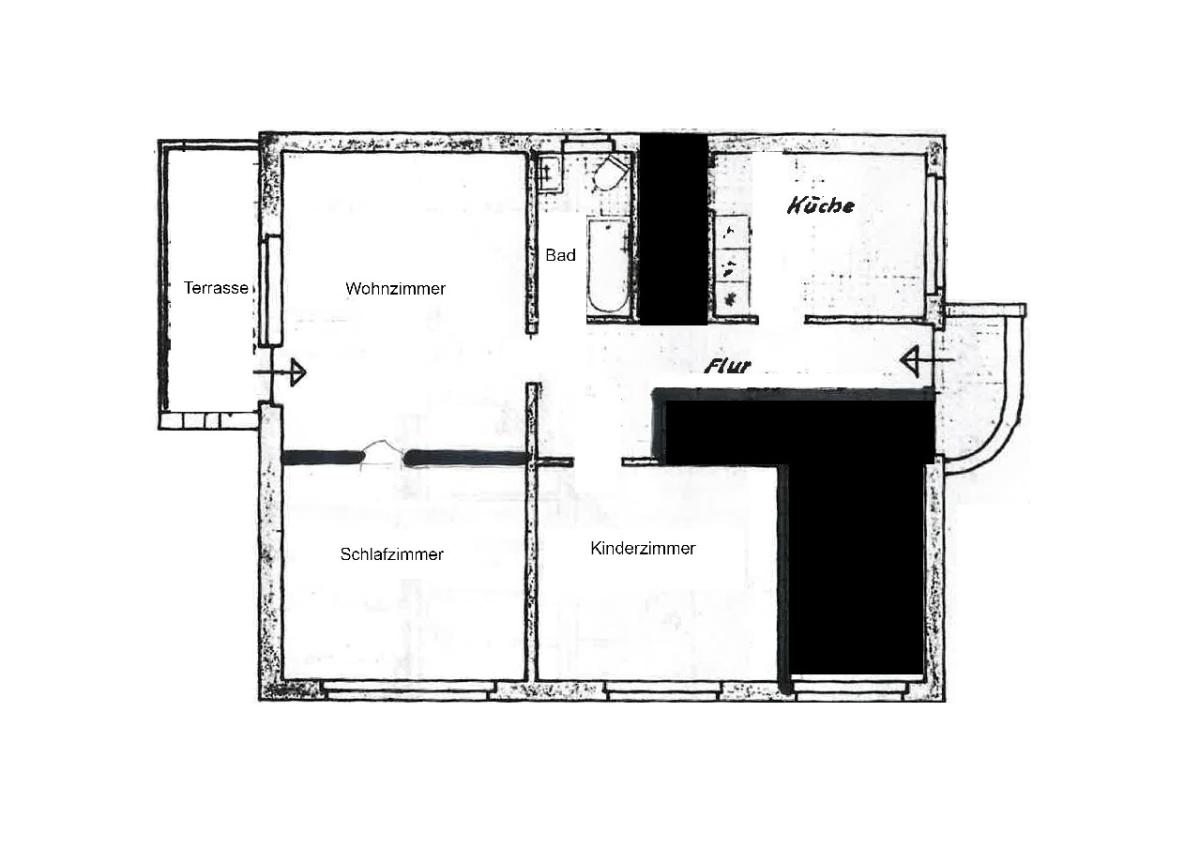
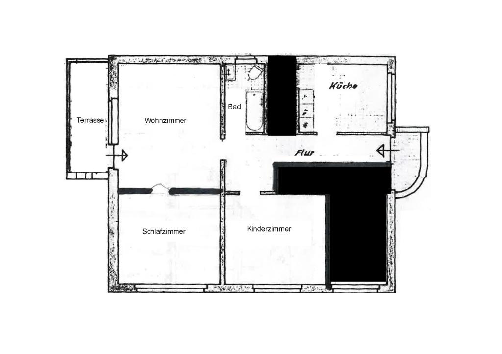
Grundriss

21720 Steinkirchen

Gewerblicher Anbieter

ISH Immobilien OHG
Thuner Str. 86a
21680 Stade

Details

Zimmerzahl
3
Wohnungstyp
Erdgeschosswohnung
Etagenzahl
2
Bezugsfrei ab
sofort
Anzahl Garage/ Stellplatz
1
Objektzustand
Modernisiert
Baujahr
1964

Kosten

Kaltmiete
1.052,25 €
Nebenkosten
300 €
Kaution
2.670 €
Was kostet dein Umzug?

Stellplätze

Stellplatztyp
Freiplatz
Anzahl
1
Miete
30 €

Objektbeschreibung

Willkommen in Ihrem neuen Zuhause! Diese lichtdurchflutete 3-Zimmer-Wohnung mit einer großzügigen Wohnfläche von 91,5 m² bietet Ihnen den perfekten Rückzugsort. In der ebenerdigen Wohnung erleben Sie eine harmonische Kombination aus modernem Komfort und zeitloser Eleganz. Der Wohnbereich lädt zum Verweilen ein und bietet einen herrlichen Blick auf die Terrasse und Ihren Gartenbereich.
Die moderne Einbauküche bietet ausreichend Platz für jede Menge Kreativität beim Kochen und Backen. Die beiden Schlafzimmer sind großzügig geschnitten und bieten Raum für individuelle Gestaltung. Des Weiteren steht Ihnen ein Bad mit bodengleicher Dusche sowie einem Fenster zur Verfügung. Ein besonderes Highlight ist der Parkettboden im Wohn- und Schlafbereich.


Zusätzlich steht Ihnen ein Stellplatz zur Verfügung. Diese Wohnung ist bereit, von Ihnen mit Leben gefüllt zu werden. Lassen Sie sich von der Vielseitigkeit und dem Charme dieses einzigartigen Objekts begeistern!


Bausubstanz & Energieausweis

A+

A

B

C

D

E

F

197,9 kWh/(m²*a)

G

H

Baujahr
1964
Objektzustand
Modernisiert
Wesentlicher Energieträger
Gas
Heizungsart
Gasheizung
Befeuerung
Gasheizung
Energieausweis
liegt vor
Energieausweistyp
Bedarfsausweis
Ausstellungsdatum
07.02.2024
Gültig bis
06.02.2034
Energieeffizienzklasse
F
Endenergiebedarf
197,9 kWh/(m²*a)

Ausstattung


  • Einbauküche neu aus 2023

  • Duschbad neu aus 2023

  • Innentüren neu aus 2023

  • Fenster 3-fach verglast, neu aus 2023

  • Gasheizung neu aus 2023

  • Abstellmöglichkeit innerhalb der Wohnung

  • Terrasse

  • Gartenbereich

  • Stellplatz für Fahrräder

  • Kfz-Stellplatz (je zzgl. EUR 30,00)

  • 2 Jahre Mindestmietdauer

  • Die Versorgung mit Multimedia (TV, Internet) muss direkt mit dem Versorger abgerechnet werden.


Lagebeschreibung

Steinkirchen gehört zur Samtgemeinde Lühe und liegt zwischen Stade und Buxtehude mitten im Alten Land. Der Fähranleger Lühe ist nur 3 km entfernt. In Buxtehude sind Sie in 20 Minuten, nach Finkenwerder benötigen Sie knapp 30 Minuten und die Hansestadt Stade ist ca. 17 Minuten mit dem Auto entfernt. Den Feierabend können Sie bei einem schönen Spaziergang am Deich ausklingen lassen. In Steinkirchen finden Sie neben mehreren Obsthöfen mit regionalem Obst und Gemüse auch einen großen Supermarkt, ein Fitness-Studio und ein Restaurant. Der Bäcker vor Ort ermöglicht ein kleines Frühstück und kleine Cafés laden zum Rasten ein.


Sonstige Angaben

Hinweis: Wir weisen höflich darauf hin, dass die hier gemachten Angaben ausschließlich auf den uns vom Eigentümer übermittelten Unterlagen und Daten basieren. Für die Richtigkeit und Vollständigkeit können wir keine Haftung übernehmen. Das Angebot ist freibleibend. Forderungen und Irrtümer vorbehalten.


Wenn Sie zu diesem Angebot Kontakt zu uns aufnehmen, werden Ihre personenbezogenen Daten von uns gespeichert. Weitere Informationen zum Datenschutz finden Sie auch auf unserer Homepage unter https://ish-immobilien.de/de/datenschutzerklaerung


Hinweise Geldwäschegesetz - GwG:


Als Immobilienmakler sind wir nach § 2 Abs. 1 Nr. 14 und § 10 Abs. 3 Geldwäschegesetz (GwG) dazu verpflichtet, bei der Begründung einer Geschäftsbeziehung die Identität des Vertragspartners festzustellen und zu überprüfen. Hierzu ist es erforderlich, dass wir nach § 11 GwG die relevanten Daten Ihres Personalausweises festhalten (wenn Sie als natürliche Person handeln) - beispielsweise mittels einer Kopie. Bei einer juristischen Person benötigen wir eine Kopie des Handelsregisterauszugs, aus welchem der wirtschaftlich Berechtigte hervorgeht. Das Geldwäschegesetz schreibt uns zwingend vor, dass wir die Kopien bzw. Unterlagen fünf Jahre aufbewahren.


Energieausweis:
Bedarfsausweis gültig von: 07.02.2024 bis 06.02.2034
Endenergiebedarf Wärme: 197.9 kWh/(m²a)
Wesentliche Energieträger Heizung: Befeuerung Gas
Energieeffizienzklasse: F
Baujahr: 1964


Wohnung finden so einfach wie möglich - das ist unsere Mission!

Kostenlose Basic Features

0 € monatlich


  • Individuelles Such-Profil anlegen
  • Suchaufträge speichern
  • One-Klick Kontaktaufnahme

alles anzeigen

Jetzt kostenlos anmelden

Premium Features

19,99 € monatlich


  • Alle kostenlosen Features
  • Smart-Alarm per Whatsapp
  • Deine Chancen checken
  • Wohngegend analysieren

alles anzeigen

Jetzt Premium freischalten

Gewerblicher Anbieter

ISH Immobilien OHG
Thuner Str. 86a
21680 Stade

Wohnglück-ID:
Objekt-Nr.:
WGL-887980
4906