Büro / Praxen in Hamburg (Bahrenfeld)

Denkmalschutz

Büroloft in den Conz-Höfen

Anfragen bisher

Premium

Meine Chancen

Premium

Fairer Preis

Premium

Kaltmiete

22761 Hamburg

Gewerblicher Anbieter

Grossmann & Berger GmbH
Bleichenbrücke 9 (Stadthöfe)
20354 Hamburg Neustadt

Details

Bürofläche
6.421 m²
Typ der Gewerbeimmobilie
Büro / Praxen
Bezugsfrei ab
kurzfristig

Kosten

Kaltmiete
zzgl. gesetzlicher Mehrwertsteuer, gemäß unseren Geschäftsbedingungen
Was kostet dein Umzug?

Objektbeschreibung

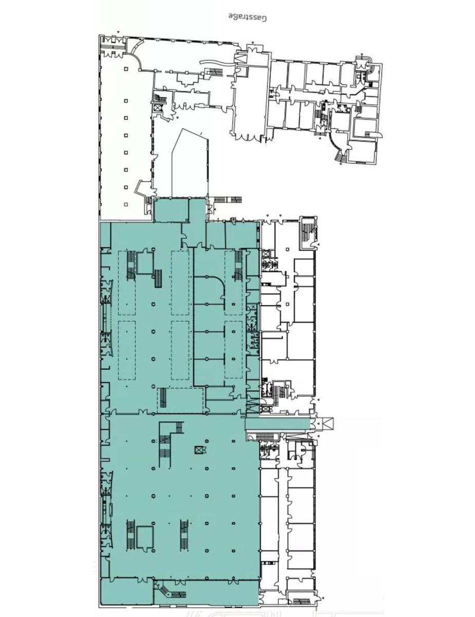
Diese ehemalige Produktionshalle befindet sich nur wenige Schritte von der S-Bahnhaltestelle "Bahrenfeld" entfernt. Hier hatte einst die "Conz Elektricitäts-Gesellschaft mbH" ihren Firmensitz. Nach einer Nutzung durch SinnerSchrader als Bürofläche wurde die Halle zuletzt gemischt als Verteilzentrum und Verwaltungssitz verwendet.


Das Objekt präsentiert sich von außen mit einer Backsteinfassade. Die Flächen unterstreichen den Loft-Charakter durch hohe Decken, Industrieparkett und Glasabtrennung. Die Raumaufteilung ist variabel und passt sich an die jeweiligen Unternehmer-und Mitarbeiterstrukturen an. Der Eigentümer ist offen für Nutzungsideen und prüft gern deren Umsetzbarkeit.


Die Gasstraße hat sich mittlerweile zu einem echten Zentrum in Bahrenfeld entwickelt. Diese Entwicklung wird aktuell südlich der Bahngleise weitergeführt. Auf dem direkt angrenzenden Otto-von-Bahrenpark befinden sich weitere denkmalgeschützte und Neubau- Gewerbe- und Büroflächen. Dort sind auch Hotels (Gastwerk, 25 hours), ein Sportclub (Holmes Place) und ein vielfältiger Ladenbesatz, bei denen die Mitarbeiter alles für den täglichen Bedarf finden.


Bausubstanz & Energieausweis

Heizungsart
Sonstige

Wohnung finden so einfach wie möglich - das ist unsere Mission!

Kostenlose Basic Features

0 € monatlich


  • Individuelles Such-Profil anlegen
  • Suchaufträge speichern
  • One-Klick Kontaktaufnahme

alles anzeigen

Jetzt kostenlos anmelden

Premium Features

19,99 € monatlich


  • Alle kostenlosen Features
  • Smart-Alarm per Whatsapp
  • Deine Chancen checken
  • Wohngegend analysieren

alles anzeigen

Jetzt Premium freischalten

Gewerblicher Anbieter

Grossmann & Berger GmbH
Bleichenbrücke 9 (Stadthöfe)
20354 Hamburg Neustadt

Wohnglück-ID:
Objekt-Nr.:
WGL-837054
574973