Reihenhaus in Langenfeld (Rheinland)

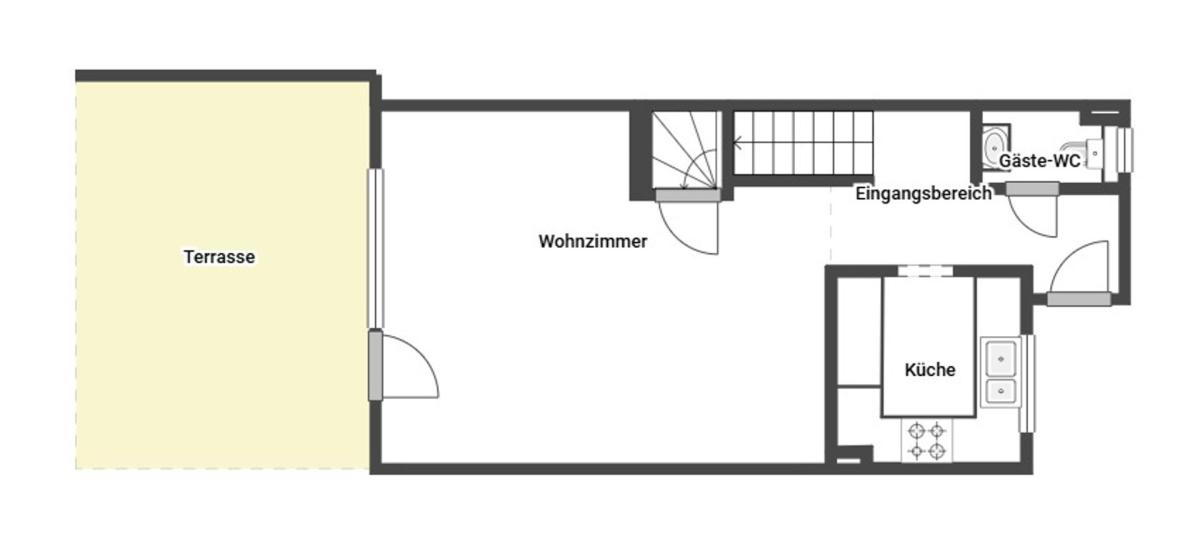
Balkon/­Terrasse
Garten/­-mitbenutzung
Gäste WC
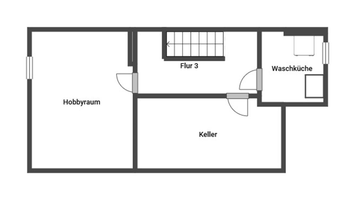
Keller
Einbauküche
Garage/­Stellplatz

Langenfeld: Modernes KfW 55 Reihenendhaus mit 4 Schlafzimmern, 2 Bäder, Garage und 2 Stellplätzen!

Anfragen bisher

Premium

Meine Chancen

Premium

Fairer Preis

Premium

740.000 €

Kaufpreis

134 m²

5 Zi.

40764 Langenfeld (Rheinland)

Gewerblicher Anbieter

McMakler GmbH
Am Postbahnhof 17
10243 Berlin

Details

Grundstücksfläche
218 m²
Zimmerzahl
5
Haustyp
Reihenhaus
Etagenzahl
3
Nutzfläche
26 m²
Bezugsfrei ab
31.07.2026
Anzahl Schlafzimmer
4
Anzahl Badezimmer
2
Anzahl Garage/ Stellplatz
1
Objektzustand
Gepflegt
Letzte Modernisierung/ Sanierung
2019
Baujahr
2019

Kosten

Kaufpreis
740.000 €
Käuferprovision
Die Provision i.H.v. 3,57 % inkl. MwSt. ist mit Kaufvertragsbeurkundung fällig, sofern der Verkaufspreis über 83.000,00 € liegt. Liegt der Verkaufspreis dagegen bei/unter 83.000,00 €, ist die fest vereinbarte Mindestprovision i.H.v. mind. 5.950,00
Was kostet dein Umzug?

Objektbeschreibung

Objektnr: 1067311


Dieses neuwertige energieeffiziente KfW55 Reihenendhaus lässt keine Wünsche übrig!


Mit einer Wohnfläche von ca. 134 m², auf 3 Etagen verteilt, bietet das modern ausgestattete Einfamilienhaus aus dem Baujahr 2019 genügend Platz, um die ganze Familie unter einem Dach zu vereinen. Mit 5 Zimmern, darunter 4 Schlafzimmer und 2 vollwertige Badezimmer profitieren Familien von einer vorteilhaften Raumaufteilung und variablen Nutzungsmöglichkeiten.


Elektrische Rollläden, Fenster mit Dreifachverglasung, erhöhter Einbruchschutz mit Sicherheitsbeschläge im EG, eine zukunftsorientierte Haustechnik mit modernem Nahwärmekonzept, Fußbodenheizung auf allen Etagen inkl. Keller und zudem noch eine vollausgestattete Einbauküche mit hochwertigen Einbaugeräten sind nur einige der vielen hochwertigen Ausstattungsmerkmale, die Sie als neuer Erwerber vorfinden werden.


Zur Erholung und Entspannung lädt das ca. 218 m² große Grundstück ein. Als besonderes Highlight präsentiert sich der pflegeleichte Garten mit Terrasse in Südausrichtung.


Für ein Mehr an Stau- und Nutzfläche sorgt der vollbeheizte und geflieste Keller des Hauses.
Neben den klassischen Hauswirtschaftsräumen befindet sich im Untergeschoss zudem ein vielseitig nutzbarer Hobbyraum.
Eine Garage mit Elektroanschluss und gleich 2 Freistellplätze sind weiterhin Bestandteil des Erwerbs und vervollständigen dieses Angebot.


Das Haus ist aktuell vermietet und kann spätestens zum 01.08.2026 bezogen werden- hier besteht schon ein einvernehmlich, schriftlich geschlossener Aufhebungsvertrag.
Die monatliche Nettokaltmiete beträgt derzeit 1.943,00€ zzgl. 110,00€ Nebenkosten.


Sichern Sie sich bereits jetzt diese schöne Immobilie und freuen sich auf den Einzug in 2026!


Bausubstanz & Energieausweis

A+

A

B

67,1 kWh/(m²*a)

C

D

E

F

G

H

Baujahr
2019
Objektzustand
Gepflegt
Letzte Modernisierung
2019
Wesentlicher Energieträger
Fernwärme
Heizungsart
Zentralheizung
Befeuerung
Fernwärme
Energieausweis
liegt vor
Energieausweistyp
Bedarfsausweis
Energieeffizienzklasse
B
Endenergiebedarf
67,1 kWh/(m²*a)

Ausstattung


  • elektrische Rollläden, Fenster mit Dreifach-Wärmeschutzisolierverglasung - KfW 55!

  • Zukunftsorientierte Haustechnik mit modernem Nahwärmekonzept, Fußbodenheizung

  • Einbauküche mit hochwertigen Siemensgeräten

  • Familiengrundriss mit 4 Schlafzimmer und 2 vollwertige Tageslichtbadezimmer

  • Garage mit Strom für Ihre E-Mobilität, sowie 2 Stellplätze


Lagebeschreibung

Lage: Attraktive Lage in einem familienorientierten Wohnviertel in Immigrath
Bildung und Betreuung: ausreichend viele Bildungs- und Betreuungsangebot vor Ort
Nahversorgung: Nur rund 3 km zu wichtigen Anlaufstellen wie Supermärkten, Apotheken, Bankfilialen und Postfilialen
Anbindung: Gut erreichbar - nächste Bushaltestelle und Bahnhof sowie Autobahn A3/A59


Sonstige Angaben

Vereinbaren Sie noch heute einen Besichtigungstermin!








Alle Angaben sind ohne Gewähr und basieren ausschließlich auf Informationen, die uns von unserem Auftraggeber zur Verfügung gestellt wurden. Wir übernehmen keine Gewähr für die Vollständigkeit, Richtigkeit und Aktualität der Angaben.


Wohnung finden so einfach wie möglich - das ist unsere Mission!

Kostenlose Basic Features

0 € monatlich


  • Individuelles Such-Profil anlegen
  • Suchaufträge speichern
  • One-Klick Kontaktaufnahme

alles anzeigen

Jetzt kostenlos anmelden

Premium Features

19,99 € monatlich


  • Alle kostenlosen Features
  • Smart-Alarm per Whatsapp
  • Deine Chancen checken
  • Wohngegend analysieren

alles anzeigen

Jetzt Premium freischalten

Gewerblicher Anbieter

McMakler GmbH
Am Postbahnhof 17
10243 Berlin

Wohnglück-ID:
Objekt-Nr.:
WGL-823367
682c86c6e27ac0a0a95d9e35