Büro / Praxen in Berlin (Alt-Hohenschönhausen)

Aufzug
Denkmalschutz

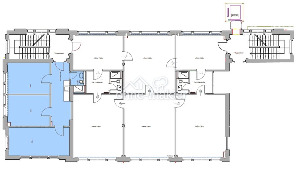
Helles Gewerbe, Büro oder Atelier mit 3-9 großen Zi (75-300 Qm)

Anfragen bisher

Premium

Meine Chancen

Premium

Fairer Preis

Premium

14 €

Kaltmiete

Freienwalder Str. 17
13055 Berlin

Gewerblicher Anbieter

ohne-makler.net
Humboldtstraße 25 A
21509 Glinde

Details

Bürofläche
300 m²
Typ der Gewerbeimmobilie
Büro / Praxen
Etage, Geschoss
2
Etagenzahl
4
Bezugsfrei ab
01.02.2026
Objektzustand
Gepflegt
Baujahr
1910

Kosten

Kaltmiete
14 €
Was kostet dein Umzug?

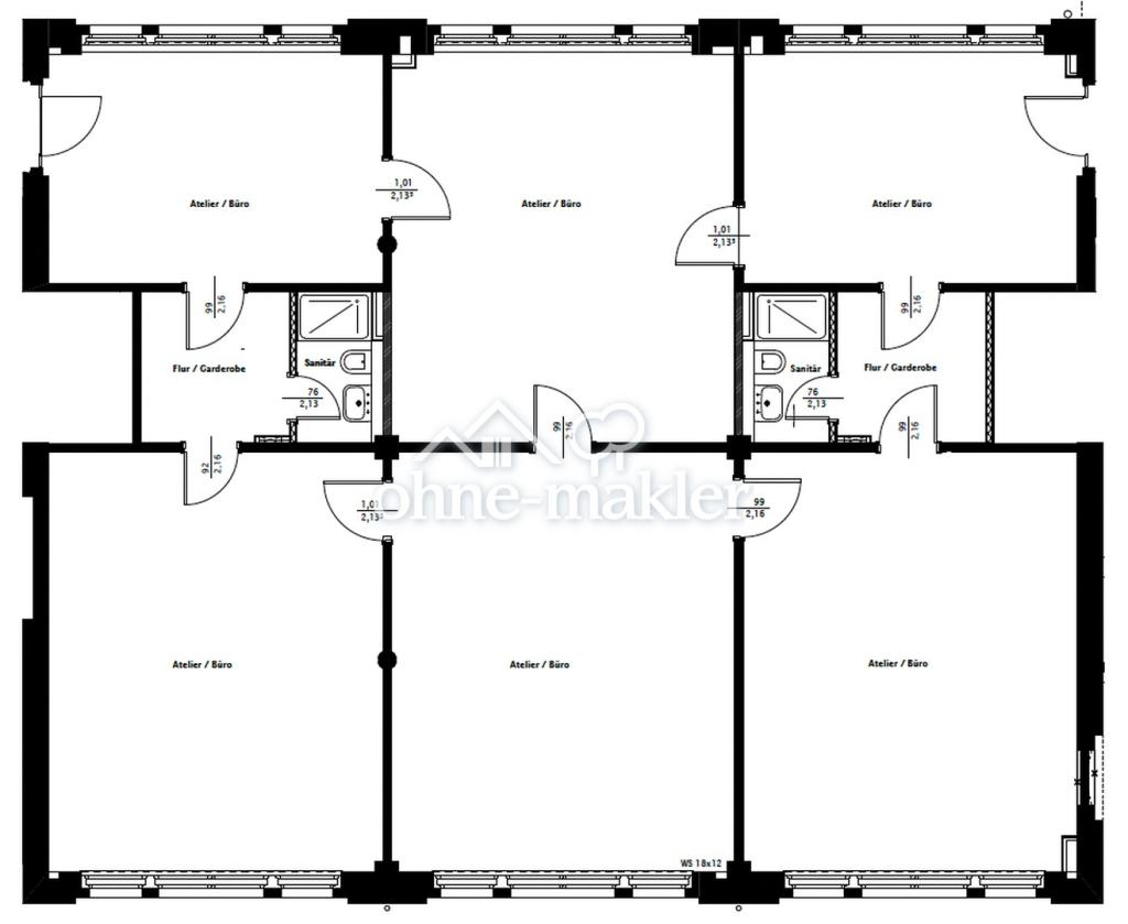
Objektbeschreibung

Die Einheit befindet sich in einem historischen Gewerbe-Atelierhaus und kann sowohl als Büro oder Atelier genutzt werden. Die ehemalige Villa Heike wurde 2019 kernsaniert und ist in einem sehr guten Zustand. Es sind verschiedene Einheiten einzeln oder zusammen vermietbar. Alle Einheiten haben moderne Duschbäden. Die Türen und Fenster sind im Original erhalten, der Fussboden ist ein restaurierter, dunkelroter Calziumsulfatestrich. Die übrigen Einheiten in dem Haus sind an Künstler oder an Einzelfirmen und Freischaffende aus der Kreativszene vermietet.


Option 1:
3 Zimmern, Flur, Küche und Bad. Die Einheit hat 75 Qm und kann einzeln angemietet oder mit der großen Einheit verbunden werden.
Miete (3 Zi, Küche, Bad): 1100 Kaltmiete + 250 Euro Nebenkosten-VZ + Umsatzsteuer


Option 2:
Die Einheit hat zwei Eingänge, sechs große Zimmer, sowie zwei moderne Duschbäder. Küchenanschlüsse sind vorhanden.
Miete (6Zi/215 Qm): 3000 Euro Kaltmiete + 600 Euro Nebenkosten-VZ + Umsatzsteuer


Option 3:
9 Zimmer, 3 Eingänge, 3 Bäder + Küche.

Miete (290 Qm): 4100 Euro Kaltmiete + 850 Euro Nebenkosten-VZ + Umsatzsteuer


Bausubstanz & Energieausweis

Objektzustand
Gepflegt
Heizungsart
Zentralheizung
Befeuerung
Gasheizung
Energieausweis
Laut Gesetz nicht erforderlich

Ausstattung

Fahrstuhl, Sonstiges (s. Text)


Bemerkungen:
Kaution: 3 Kaltmieten
Die Einheit darf nur an umsatzsteuerpflichtige Gewerbe vermietet werden.
Gewerbliches Übernachten ist nicht gestattet.


Lagebeschreibung

Die Freienwalder Straße befindet sich in Alt-Hohenschönhausen, ca. 6km vom Alexanderplatz entfernt. In unmittelbarer Nähe befinden sich die ID-Studios sowie die Gedenkstätte Hohenschönhausen. Das Haus befindet sich in der Nähe der Altstadt von Hohenschönhausen mit klassischen Einkaufs- und Freizeitangebote und ist vom Oberseepark mit Oberssee und Orankesee ca. 700m entfernt.
Infrastruktur (im Umkreis von 5 km):
Apotheke, Lebensmittel-Discount, Allgemeinmediziner, Öffentliche Verkehrsmittel


Sonstige Angaben

Heizungsart: Zentralheizung
Energieträger: Gas


Benötigte Unterlagen:
Kopie Personalausweis
Bestätigung Gewerbeanmeldung und Umsatzsteuer-ID
Einkommensnachweis (zB als BWA, Jahresabschluss, Steuerberater,...)
Schufa-Auskunft


Makleranfragen nicht erwünscht. Nach § 7 UWG sind unaufgeforderte Kontaktaufnahmen durch Makler ohne ausdrückliche Einwilligung des Empfängers verboten!


ohne-makler (OM) ist weder Anbieter noch Vermittler der Immobilie. OM betreibt eine Plattform für Immobilieneigentümer, die unter anderem die gleichzeitige Veröffentlichung einzelner Inserate auf mehreren Immobilienportalen ermöglicht. Die Inhalte dieser Inserate werden ausschließlich von Dritten verantwortet. Für die Richtigkeit, Vollständigkeit oder Rechtmäßigkeit der Angaben übernimmt OM keine Haftung. Hinweise auf mögliche Rechtsverstöße können jederzeit gemeldet werden und werden nach Prüfung umgehend bearbeitet.


Wohnung finden so einfach wie möglich - das ist unsere Mission!

Kostenlose Basic Features

0 € monatlich


  • Individuelles Such-Profil anlegen
  • Suchaufträge speichern
  • One-Klick Kontaktaufnahme

alles anzeigen

Jetzt kostenlos anmelden

Premium Features

19,99 € monatlich


  • Alle kostenlosen Features
  • Smart-Alarm per Whatsapp
  • Deine Chancen checken
  • Wohngegend analysieren

alles anzeigen

Jetzt Premium freischalten

Gewerblicher Anbieter

ohne-makler.net
Humboldtstraße 25 A
21509 Glinde

Wohnglück-ID:
Objekt-Nr.:
WGL-816550
403350