Hallen / Lager / Produktion in Berlin (Spandau)

barrierefrei
Gäste WC
Garage/­Stellplatz
 

Anfragen bisher

Premium

Meine Chancen

Premium

Fairer Preis

Premium

3.645 €

Kaltmiete

700 m²

2 Zi.

-1

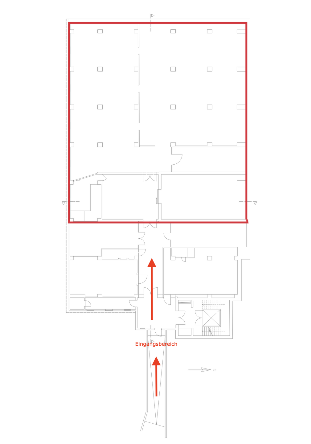
Grundriss

13597 Berlin

Gewerblicher Anbieter

Amelia-Immobilien
Lietzenburgerstraße 107
10707 Berlin

Details

Lagerfläche
729 m²
Zimmerzahl
2
Typ der Gewerbeimmobilie
Hallen / Lager / Produktion
Etage, Geschoss
-1
Anzahl Garage/ Stellplatz
1
Objektzustand
Gepflegt

Kosten

Kaltmiete
3.645 €
Nebenkosten
1.640,25 €
Was kostet dein Umzug?

Stellplätze

Stellplatztyp
Freiplatz
Anzahl
3
Miete
60 €

Bausubstanz & Energieausweis

Objektzustand
Gepflegt
Heizungsart
Sonstige

Wohnung finden so einfach wie möglich - das ist unsere Mission!

Kostenlose Basic Features

0 € monatlich


  • Individuelles Such-Profil anlegen
  • Suchaufträge speichern
  • One-Klick Kontaktaufnahme

alles anzeigen

Jetzt kostenlos anmelden

Premium Features

19,99 € monatlich


  • Alle kostenlosen Features
  • Smart-Alarm per Whatsapp
  • Deine Chancen checken
  • Wohngegend analysieren

alles anzeigen

Jetzt Premium freischalten

Gewerblicher Anbieter

Amelia-Immobilien
Lietzenburgerstraße 107
10707 Berlin

Wohnglück-ID:
Objekt-Nr.:
WGL-815769
150054997