Hallen / Lager / Produktion in Berlin (Spandau)

barrierefrei
Gäste WC
Garage/­Stellplatz

Exklusiv! Günstige Lagerfläche in Berlin Spandau/Westend – 729 m² zur Miete

Anfragen bisher

Premium

Meine Chancen

Premium

Fairer Preis

Premium

3.645 €

Kaltmiete

700 m²

2 Zi.

-1

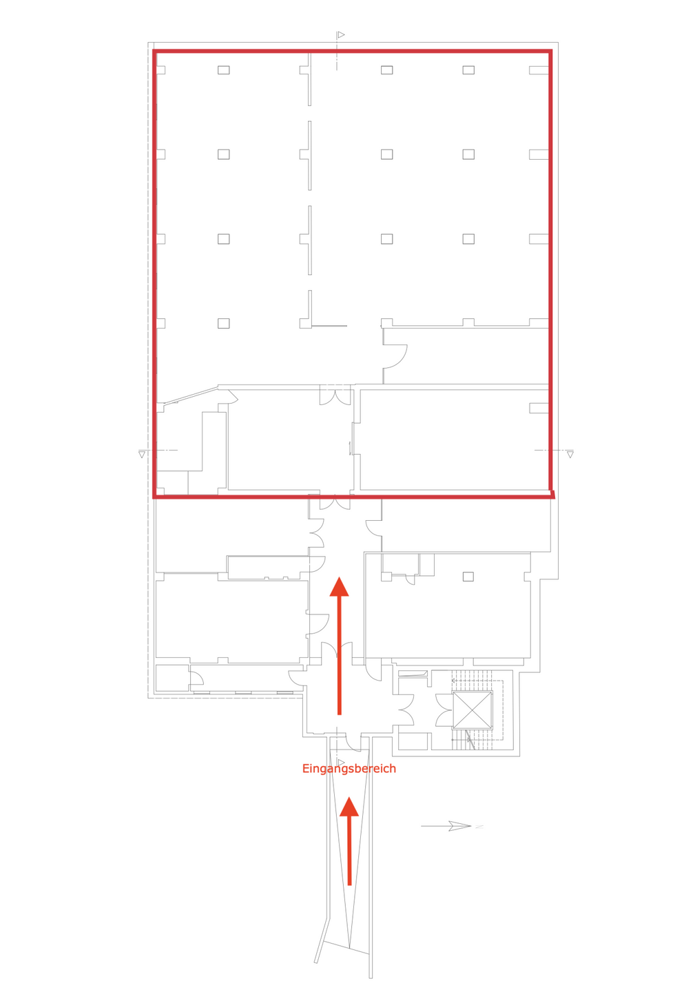
Grundriss

13597 Berlin

Gewerblicher Anbieter

Amelia-Immobilien
Lietzenburgerstraße 107
10707 Berlin

Details

Lagerfläche
729 m²
Zimmerzahl
2
Typ der Gewerbeimmobilie
Hallen / Lager / Produktion
Etage, Geschoss
-1
Bezugsfrei ab
ab sofort
Anzahl Garage/ Stellplatz
1
Objektzustand
Gepflegt

Kosten

Kaltmiete
3.645 €
Nebenkosten
1.640,25 €
Was kostet dein Umzug?

Stellplätze

Stellplatztyp
Freiplatz
Anzahl
3
Miete
60 €

Objektbeschreibung

Suchen Sie eine gut erreichbare und modernisierte Lagerfläche in Berlin Westend ? Diese 729 m² große Halle bietet perfekte Voraussetzungen für Logistik, Handel oder Produktion.


Objektdetails:
📏 Fläche: 729 m²
📐 Deckenhöhe: 3,8 m – ideal für effiziente Raumnutzung
🚪 Ebenerdiger Zugang für einfache Be- & Entladung
🚗 Außenstellplätze für Mitarbeiter und Lieferanten
🔌 Starkstromanschlüsse für energieintensive Nutzung
🛗 Lastenaufzug für den sicheren Transport schwerer Güter
🔒 Kamerüberwachung für zusätzliche Sicherheit
⏰ 24/7 Zugang für flexible Nutzung


Mietkonditionen:
💶 Monatsmiete: 3.645 € (5 €/m²)
💶 Nebenkosten: 2,25 €/m²


Vorteile:
✔ Hohe Bodenbelastung – ideal für schwere Maschinen und Lagerung
✔ Flexible Nutzungsmöglichkeiten für Logistik-, Produktions- & Handelsunternehmen
✔ Moderne Ausstattung und gute Verkehrsanbindung für schnelle Distribution


📞 Jetzt Besichtigung vereinbaren!
Kontaktieren Sie uns noch heute für mehr Informationen oder einen persönlichen Besichtigungstermin!


Bausubstanz & Energieausweis

Objektzustand
Gepflegt
Heizungsart
Sonstige

Ausstattung


  • Ebenerdiger Zugang

  • Außenstellplätze

  • hohe Bodenbelastung

  • 24/7 Zugang

  • Kamerüberwachung


Lagebeschreibung

Bezirk Spandau verläuft vom Spandauer Damm bis Freiheit.


Er trägt seinen Namen seit 1911.
Im Jahre 1911 wurde auf dem Ruhlebener Wiesengelände, südlich der Spree, durch die Hochbahngesellschaft ein Kraftwerk errichtet. Die neue Zufahrtsstraße wurde als Dammschüttung in den niedrig gelegenen Wiesen angelegt, woraus sich sein Name ableitet.


In der Nähe des Standorts liegen viele Restaurants, Supermärkte, Bäckereien und Shopping Läden. Ebenfalls grenzt in der Umgebung ein großer Ikea an, welcher nur 3 KM von der Halle entfernt ist.


Die dargestellten Informationen basieren auf Daten von Google Maps. Stand: 2020. Bei der Anbindung berechnen wir die Luftlinie, ausgehend von der gesuchten Adresse.
Zu den öffentlichen Verkehrsmitteln zählen Bus, Straßenbahn und Zugverkehr (Bahn: Regional- und Fernverkehr). U-Bahn ist nicht mit eingeschlossen.


Wohnung finden so einfach wie möglich - das ist unsere Mission!

Kostenlose Basic Features

0 € monatlich


  • Individuelles Such-Profil anlegen
  • Suchaufträge speichern
  • One-Klick Kontaktaufnahme

alles anzeigen

Jetzt kostenlos anmelden

Premium Features

19,99 € monatlich


  • Alle kostenlosen Features
  • Smart-Alarm per Whatsapp
  • Deine Chancen checken
  • Wohngegend analysieren

alles anzeigen

Jetzt Premium freischalten

Gewerblicher Anbieter

Amelia-Immobilien
Lietzenburgerstraße 107
10707 Berlin

Wohnglück-ID:
Objekt-Nr.:
WGL-815768
150054997