Mehrfamilienhaus in Münster (Mitte-Süd)

derzeit vermietet
Keller
Garage/­Stellplatz

Mehrfamilienhaus in begehrter Wohnlage nahe dem Aasee

Anfragen bisher

Premium

Meine Chancen

Premium

Fairer Preis

Premium

1.350.000 €

Kaufpreis

318,82 m²

14 Zi.

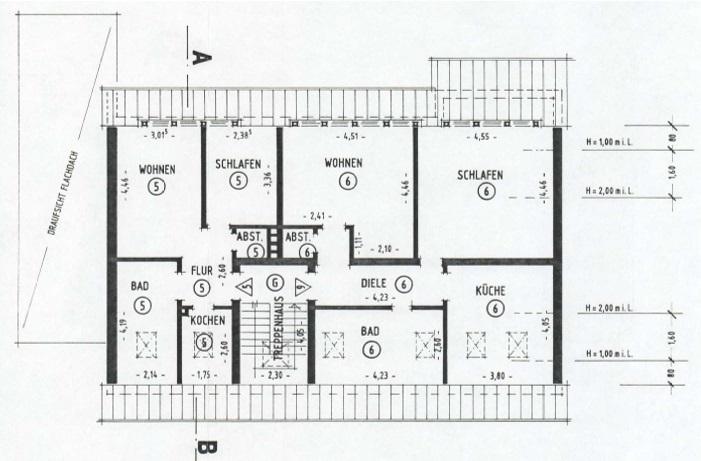
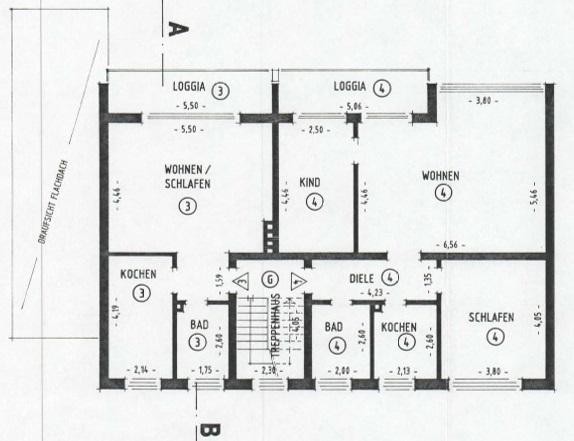
Grundriss

48151 Münster

Gewerblicher Anbieter

Wolfram Neuhaus - Kooperationspartner der VB Select Finance AG
Friedrich-Ebert-Straße 110
48153 Münster

Details

Grundstücksfläche
808 m²
Zimmerzahl
14
Haustyp
Mehrfamilienhaus
Etagenzahl
2
Anzahl Garage/ Stellplatz
1
Baujahr
1962

Kosten

Kaufpreis
1.350.000 €
Käuferprovision
2,975 %
Was kostet dein Umzug?

Stellplätze

Stellplatztyp
Garage
Anzahl
1

Objektbeschreibung

Sie suchen eine attraktive Kapitalanlage in Form eines Mehrfamilienhauses? Dann könnte diese Immobilie genau das Richtige für Sie sein.
Das Gebäude stammt aus dem Jahr 1962. Im Jahr 1993 wurde das Dachgeschoss zu Wohnzwecken ausgebaut, sodass insgesamt sechs Wohneinheiten entstanden sind. In den 1990er-Jahren erfolgte die Teilung in sechs Eigentumswohnungen.
Der Verkauf erfolgt als Gesamtpaket durch den aktuellen Eigentümer. Dies bietet Ihnen die Möglichkeit, die Wohnungen später einzeln zu veräußern.
Der Eigentümer bewohnt derzeit eine der Wohnungen und wird nach dem Verkauf innerhalb eines noch zu vereinbarenden Zeitraums ausziehen. Die übrigen fünf Wohnungen sind vollständig vermietet.
Jeder Wohnung ist ein eigener Kellerraum zugeordnet. Zusätzlich gehört eine Garage zur Immobilie. Diese ist der Wohnung im Erdgeschoss rechts zugeordnet.
Die Wohnflächen der einzelnen Einheiten liegen zwischen ca. 29 m² und 76 m² und verfügen über 1 bis 3 Zimmer, jeweils mit separater Küche und Bad.
Die Immobilie weist Modernisierungsbedarf auf. Ein entsprechendes Protokoll wurde bereits erstellt und wird Ihnen bei der Besichtigung zur Verfügung gestellt.
Zum Schutz der Privatsphäre sind im Exposé nur wenige Innenaufnahmen enthalten. Gerne können Sie sich bei einer Besichtigung persönlich ein umfassendes Bild von der Immobilie machen.


Bausubstanz & Energieausweis

A+

A

B

C

D

E

F

G

H

300,3 kWh/(m²*a)

Wesentlicher Energieträger
OEL
Heizungsart
Sonstige
Energieausweis
liegt vor
Energieausweistyp
Bedarfsausweis
Gültig bis
29.07.2035
Energieeffizienzklasse
H
Endenergiebedarf
300,3 kWh/(m²*a)

Lagebeschreibung

Die Immobilie befindet sich in der begehrten Aaseestadt in Münster, ruhig gelegen in einer Nebenstraße mit angenehmer Wohnatmosphäre. Der historische Stadtkern mit dem Prinzipalmarkt ist nur etwa 3,2 km entfernt und in rund 11 Minuten bequem mit dem Fahrrad erreichbar.


Die nächste Bushaltestelle liegt lediglich 5 Gehminuten entfernt. Von dort gelangt man in ca. 14 Minuten zum Ludgeriplatz und in etwa 17 Minuten zum Hauptbahnhof.


Für Autofahrer bietet die Lage ebenfalls hervorragende Anbindungen: Der Ring von Münster ist in nur 2 Minuten erreichbar, und der Zubringer zur B51 mit Anschluss an die Autobahnen A1 und A43 ist lediglich 5 Minuten entfernt.


Studierende profitieren von der Nähe zu zahlreichen Einrichtungen der Universität und Fachhochschule, die bequem mit dem Fahrrad erreichbar sind.


Auch für Freizeit und Erholung ist bestens gesorgt: Der Aasee, ideal für Spaziergänge und sportliche Aktivitäten, liegt nur 5 Gehminuten entfernt. Die Sportanlagen auf der Sentruper Höhe sind in etwa 5 Minuten mit dem Fahrrad erreichbar und bieten vielfältige Möglichkeiten zur aktiven Freizeitgestaltung.


Wohnung finden so einfach wie möglich - das ist unsere Mission!

Kostenlose Basic Features

0 € monatlich


  • Individuelles Such-Profil anlegen
  • Suchaufträge speichern
  • One-Klick Kontaktaufnahme

alles anzeigen

Jetzt kostenlos anmelden

Premium Features

19,99 € monatlich


  • Alle kostenlosen Features
  • Smart-Alarm per Whatsapp
  • Deine Chancen checken
  • Wohngegend analysieren

alles anzeigen

Jetzt Premium freischalten

Gewerblicher Anbieter

Wolfram Neuhaus - Kooperationspartner der VB Select Finance AG
Friedrich-Ebert-Straße 110
48153 Münster

Wohnglück-ID:
Objekt-Nr.:
WGL-760600
WN-24-102