Etagenwohnung in Landolfshausen

Aufzug
Balkon/­Terrasse

Attraktive Eigentumswohnungen in moderner Wohnanlage

Anfragen bisher

Premium

Meine Chancen

Premium

Fairer Preis

Premium

309.000 â‚¬

Kaufpreis

86,36 m²

3 Zi.

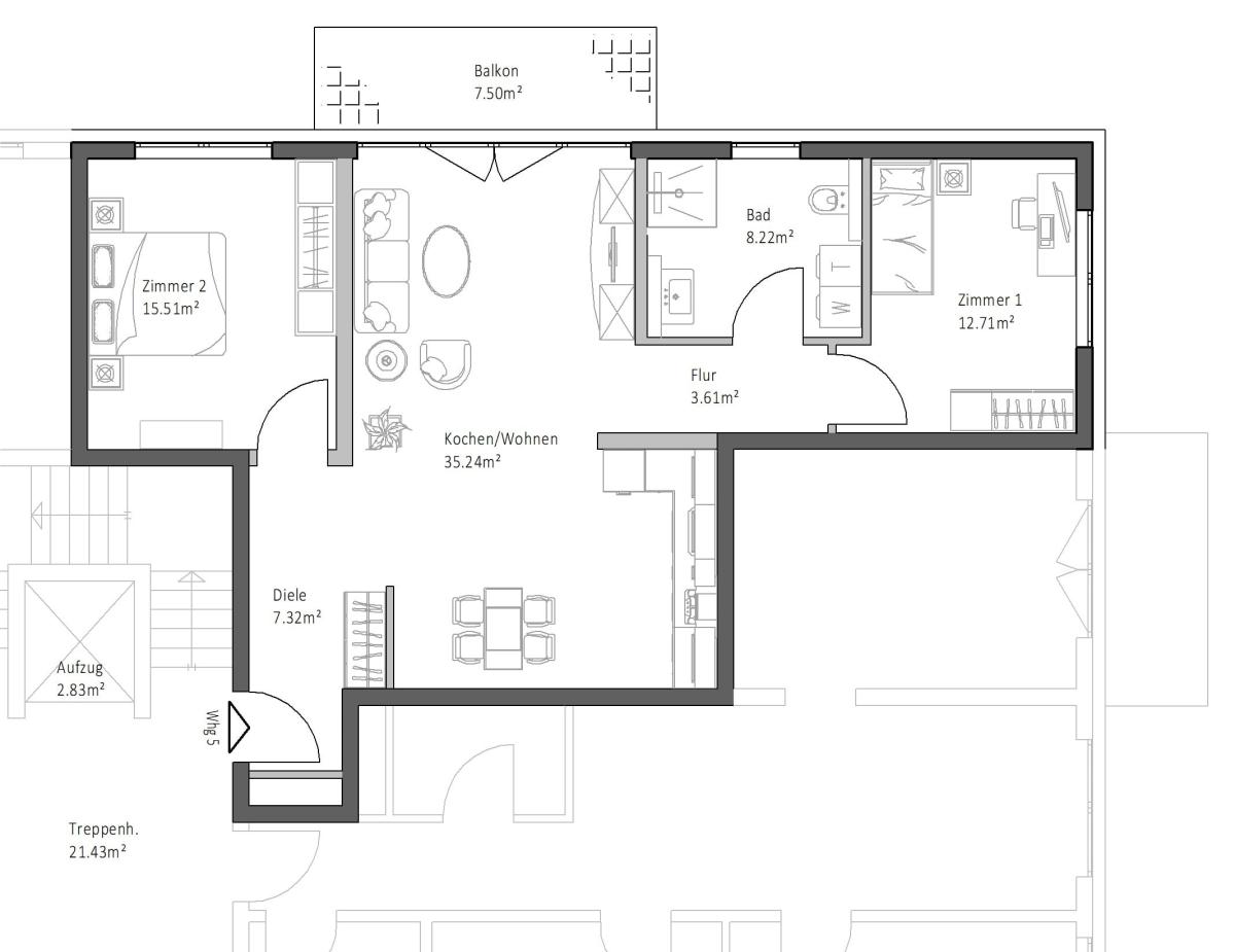
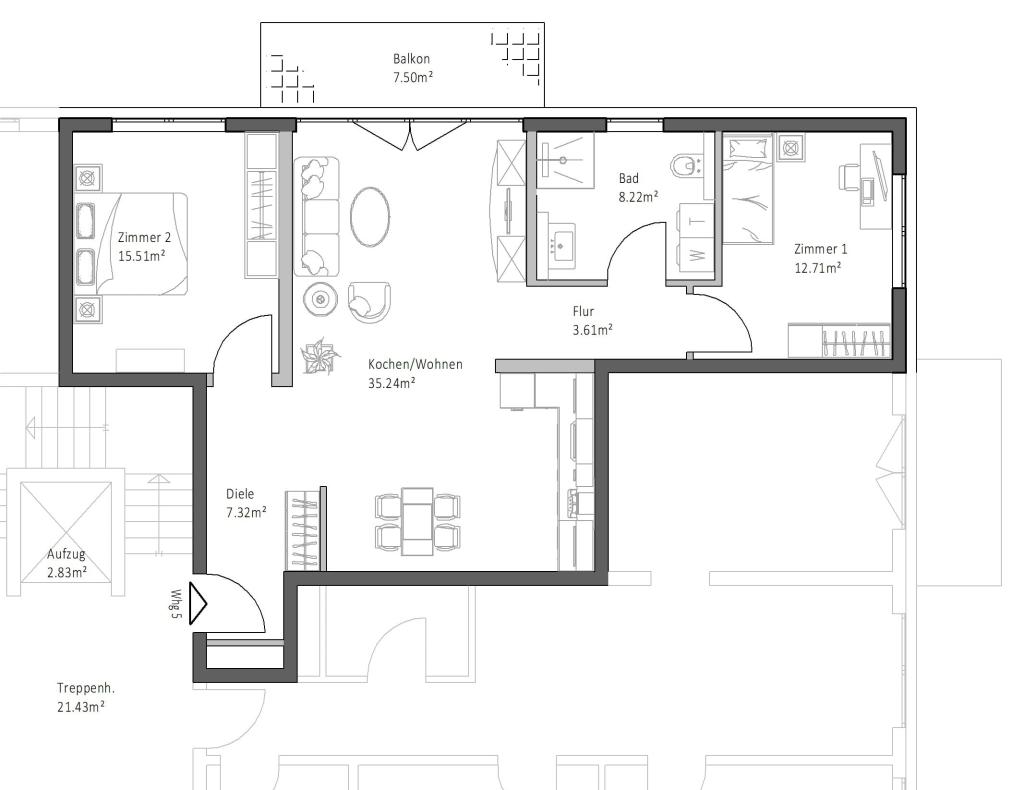
Grundriss

37136 Landolfshausen

Gewerblicher Anbieter

VR-Bank Mitte eG
Lange Str. 11+ 13
37124 Rosdorf

Details

Zimmerzahl
3
Wohnungstyp
Etagenwohnung
Etagenzahl
3
Nutzfläche
6,02 m²
Anzahl Schlafzimmer
2
Anzahl Badezimmer
1
Objektzustand
Erstbezug
Baujahr
2026

Kosten

Kaufpreis
309.000 €
Käuferprovision
keine
Was kostet dein Umzug?

Objektbeschreibung

In Landolfshausen entsteht ein modernes Mehrfamilienhaus mit insgesamt 10 schlüsselfertigen Wohneinheiten, das zeitgemäßen Wohnkomfort mit energieeffizienter Bauweise vereint. Das Projekt bietet Käufern die Möglichkeit, eine hochwertige Eigentumswohnung in einer schönen Lage zu erwerben.


ProjektĂĽbersicht
• Wohnungsgrößen: ca. 67 m² bis ca. 107 m²
• Erdgeschoss: 2 Wohneinheiten (jeweils 107,52 m²)
• 1. Obergeschoss: 4 Wohneinheiten (2x 88,02 m² und 2x 86,36 m²)
• 2. Obergeschoss: 4 Wohneinheiten (2x 67,77 und 2x 76,35 m²)
• Fertigstellung: voraussichtlich Frühjahr 2026


Energieeffizienz
• Energieklasse A
• KFW Effizienzhaus 55
• Luft-Wasser-Wärmepumpe als effiziente Heiztechnik


Solide Bauweise
• Massivbauweise aus 24 cm starken Poroton-Hochlochziegeln
• Effiziente Wärmedämmung mit 18 cm Dämmstärke


Ausstattung & Highlights
• Barrierefrei – alle Wohnungen bequem erreichbar
• Fahrstuhl vom Erdgeschoss bis ins 2. Obergeschoss
• Jede Wohnung mit Balkon, Terrasse oder Dachterrasse
• Fußbodenheizung in allen Räumen
• Dreifachverglaste Fenster für optimale Wärmedämmung
• Raffstores oder Rollladen an den Fenstern, außer Badezimmer
• Abstellraum für jede Wohnung im Erdgeschoss
• Stellplätze verfügbar (optional, 5.000 € pro Stellplatz)


Innenausstattung
• Wohn- und Schlafräume: Eichenparkett
• Bäder: moderne Fliesen (Fliesenformat 60 x 60 cm)
• Diele & offener Wohn-/Essbereich: Kombination aus Eichenparkett und Fliesen – modern & pflegeleicht


Die ausführliche Baubeschreibung hängen wir Ihnen selbstverständlich an unser Exposé.


Fazit:
Dieses Neubauprojekt kombiniert hochwertige Bauweise, energieeffiziente Ausstattung, Barrierefreiheit und durchdachte Grundrisse.
Ob als Eigenheim oder Kapitalanlage – die Eigentumswohnungen in Landolfshausen bieten eine wertbeständige Investition in die Zukunft.


Die Finanzierung Ihrer Wunschimmobilie:
Sehr gerne beraten Sie unsere Finanzierungsspezialisten ganz unverbindlich und erarbeiten mit Ihnen gemeinsam Ihr individuelles Finanzierungskonzept. Als zertifizierte Fördermittel- und Modernisierungsberater zeigen Ihnen unsere Finanzierungsspezialisten die Möglichkeiten zur Einbindung staatlicher Förderung auf und unterstützen mit unserem Netzwerk bei der Planung und Umsetzung möglicher energetischer Sanierungen. Sprechen Sie uns einfach an!


Diese Immobilie entspricht nicht ganz Ihren Vorstellungen?
Sehr gerne lassen wir Ihnen ganz unverbindlich weitere Objektangebote zukommen und registrieren Sie in unserer Datenbank.
DafĂĽr bitten wir ĂĽber nachstehenden Link Ihre individuellen SuchwĂĽnsche einzugeben:


www.vrbankmitte.de/immobiliengesuch


Wir bedanken uns ganz herzlich fĂĽr Ihr Vertrauen!


Bausubstanz & Energieausweis

Objektzustand
Erstbezug
Heizungsart
FuĂźbodenheizung
Befeuerung
Wärmepumpe
Energieausweis
Laut Gesetz nicht erforderlich

Ausstattung

Individuelle Ausstattungsmerkmale:

- Stellplätze können separat erworben werden; zu jeder WE gehört ein Abstellraum im EG
- Elektrische Rolläden
- Massivholzböden


Lagebeschreibung

Landolfshausen ist eine Gemeinde in Südniedersachsen in der Samtgemeinde Radolfshausen im Landkreis Göttingen. Der Ort Landolfshausen liegt an der Suhle, etwa 18 km östlich von Göttingen und zehn Kilometer westlich von Duderstadt und hat ca. 1.100 Einwohner. Die Nachbargemeinden sind Ebergötzen, Seulingen und Waake. Direkt im Ort befindet sich ein Kindergarten. Die Schulen befinden sich in den umliegenden Ortschaften.


Wohnung finden so einfach wie möglich - das ist unsere Mission!

Kostenlose Basic Features

0 € monatlich


  • Individuelles Such-Profil anlegen
  • Suchaufträge speichern
  • One-Klick Kontaktaufnahme

alles anzeigen

Jetzt kostenlos anmelden

Premium Features

19,99 € monatlich


  • Alle kostenlosen Features
  • Smart-Alarm per Whatsapp
  • Deine Chancen checken
  • Wohngegend analysieren

alles anzeigen

Jetzt Premium freischalten

Gewerblicher Anbieter

VR-Bank Mitte eG
Lange Str. 11+ 13
37124 Rosdorf

WohnglĂĽck-ID:
Objekt-Nr.:
WGL-735969
2163-WE 5